8 MIDHAMPTON, QUOGUE, NY

Location: 8 Midhampton, Quogue, NY

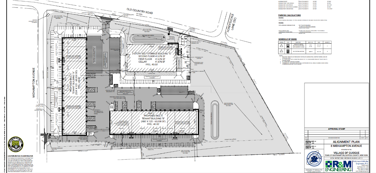
Description: 20 Acre site consisting of building two multi-tenant buildings around 60,000 SF each and a 2 story 125,000 SF self-storage facility with a basement

Key Role: Owner Rep services for our Client The Renatus Group to coordinate the efforts of all professionals on the design team; help with the preparation and finalization of construction plans; develop the budget; schedule of work and provide construction administration during work phase; review and approve change orders and review and approval contractor requisitions for progress payments before submitting to owner or lender for payment.

8 Midhampton, Quogue, NY

20 Acre site, two multi-tenant buildings 60,000 SF each and a 2 story 125,000 SF self-storage facility with a basement.

Previous
Previous

FLOOR & DÉCOR + STORAGE FACILITY

Next
Next

SECURE SPACE